Back

0 Al Mina 08 St

Dubai, United Arab Emirates
$2,621,375

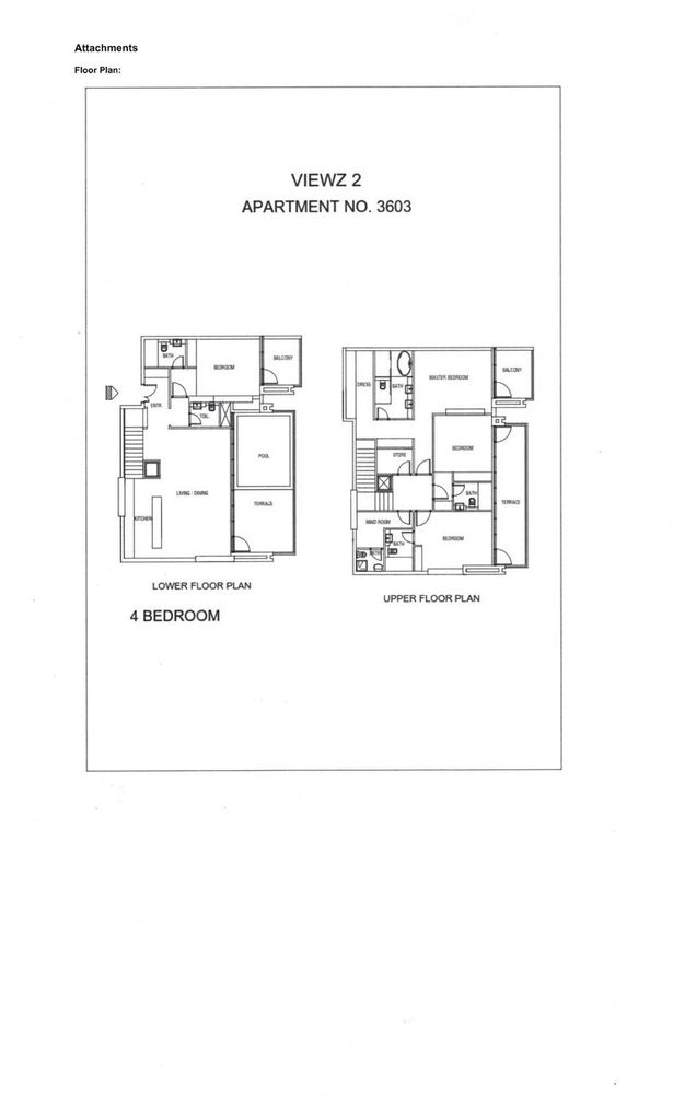
Opportunity to own a new high-rise penthouse condominium in Dubai. Breez by Danube is a premium 60-floor waterfront residential tower in Dubai Maritime City. Inspired by seaside serenity and elevated living with over 40+ resort-style amenities including infinity pool, blue lagoon, kids splash pool, kids playground and water lounges. This 2 storey 4 bedroom with pool is located on the 36th floor offerering both island and community views. Furnishings provided. Please reach out for additional information.

Lot Information
Disclaimer: Lot configuration and dimensions are estimates, not based on personal knowledge and come from a third party (Digital Map Products); therefore, you should not rely on the estimates and perform independent confirmation as to their accuracy
Request More Information
Provide your contact information to receive more information for this listing.
*
*
*

Please limit your comment to 300 characters.
Terms of Use
This email may ONLY be used to contact the agent / broker to schedule a showing of the MLS property listing and any other usage is prohibited.
General Description
Property Type
Global
Status
Active on Market
Bedrooms:
4 Bedrooms
Baths:
4 Full & 1 Half Bath(s)
Build SqFt:
3,359 Builder
City / Zip:
Dubai /
Days on Market:
15 day(s)
Room Dimensions
Primary Bedroom:
0x0, 2nd
Bedroom:
0x0, 1st
Bedroom:
0x0, 2nd
Bedroom:
0x0, 2nd
Exterior Porch/Balcony:
0x0, 1st
Interior Features
Bathroom Description:
Primary Bath: Shower Only
Bedroom Desc:
Primary Bed - 2nd Floor
Kitchen Desc:
Kitchen open to Family Room
Room Description:
1 Living Area
Interior:
Balcony,Fire/Smoke Alarm
Exterior Features
Private Pool:
Yes
Lot Description:
Water View,Waterfront
Water Amenity:
Boat House
School Information
District:
Listing Broker: BROOKS BALLARD INTERNATIONAL REAL ESTATE
Request More Information
Provide your contact information to receive more information for this listing.
*
*
*

Please limit your comment to 300 characters.
Terms of Use
This email may ONLY be used to contact the agent / broker to schedule a showing of the MLS property listing and any other usage is prohibited.
Listing Broker: BROOKS BALLARD INTERNATIONAL REAL ESTATE
Last updated as of: 02/01/2026



Privacy Policy
Terms of Use

Texas Real Estate Commission Consumer Protection Notice
Texas Real Estate Commission Information About Brokerage Services

All information is subject to change and should be independently verified.
Copyright© 2026, HOUSTON REALTORS® INFORMATION SERVICE, INC. All Rights Reserved.
Disclaimer: HAR makes no representations or warranties of any nature with regard to the privacy and/or business practices of the websites linked from or to HAR.com nor with regard to their use of any information they may collect.