Back

16614 Ella Blvd

Houston, United States
$1,750,000

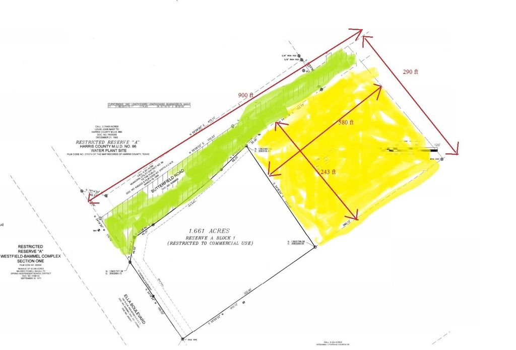
4+ Acres of Land Available (Yellow & Green Area). 3+ Acres (Yellow Usable Area), Located in the Heart of FM1960 for Commercial or Residential Use. Land situated directly across from a Highschool and Close to Long Term Assisted Living. Green Highlighted Area is Reserved for Butterfield Rd. Project forthcoming by Harris County. County Planning Intends to Install Traffic Light and Roads/Sidewalks on the Corner of Ella & Butterfield. Usable 3+ Acres is Ideal for Multifamily Residential Use. No Restrictions. Call with Questions!

Lot Information
Disclaimer: Lot configuration and dimensions are estimates, not based on personal knowledge and come from a third party (Digital Map Products); therefore, you should not rely on the estimates and perform independent confirmation as to their accuracy
Request More Information
Provide your contact information to receive more information for this listing.
*
*
*

Please limit your comment to 300 characters.
Terms of Use
This email may ONLY be used to contact the agent / broker to schedule a showing of the MLS property listing and any other usage is prohibited.
General Description
Property Type
Lots
Status
Active on Market
Lot Size:
130,680 Other
Finance Avalable:
Cash Sale,Conventional
Subdivision:
C Walter
Market Area:
1960/Cypress Creek South
City / Zip:
Houston / 77090
Key Map:
Page 332N
Days on Market:
280 day(s)
Room Dimensions
Data are not available ...
Interior Features
Data are not available ...
Exterior Features
Lot Description:
Can Be Subdivided,Other
Cable:
Unknown
Water Sewer:
Public Sewer,Public Water,Water Meter Required (not installed)
Phone:
Unknown
Electric:
Availability Unknown
Gas:
Availability Unknown
Road Surface:
Concrete
School Information
District:
Elem Sch:
Middle Sch:
High Sch:
Listing Broker: CENTURY 21 OLYMPIAN - TOKE PROPERTIES
Request More Information
Provide your contact information to receive more information for this listing.
*
*
*

Please limit your comment to 300 characters.
Terms of Use
This email may ONLY be used to contact the agent / broker to schedule a showing of the MLS property listing and any other usage is prohibited.
Listing Broker: CENTURY 21 OLYMPIAN - TOKE PROPERTIES
Last updated as of: 03/07/2026



Privacy Policy
Terms of Use

Texas Real Estate Commission Consumer Protection Notice
Texas Real Estate Commission Information About Brokerage Services

All information is subject to change and should be independently verified.
Copyright© 2026, HOUSTON REALTORS® INFORMATION SERVICE, INC. All Rights Reserved.
Disclaimer: HAR makes no representations or warranties of any nature with regard to the privacy and/or business practices of the websites linked from or to HAR.com nor with regard to their use of any information they may collect.